Horsley Park
Location: Horsley Park
Type: Residential Design
PROJECT BRIEF
In residential design, it is always more challenging to design grandeur than smaller dwellings. This time, our clients contacted us to design a house in a rural area with an enormous site and minimal requirements from the local council.
Designing a house on this massive site posed a challenge for us to utilize the space to its full extent but not waste it. The layout of the house spread horizontally with the bedrooms separated from other rooms. However, if we did not plan the layout carefully, we may create unnecessary hallways and lengthen traffic for the user.
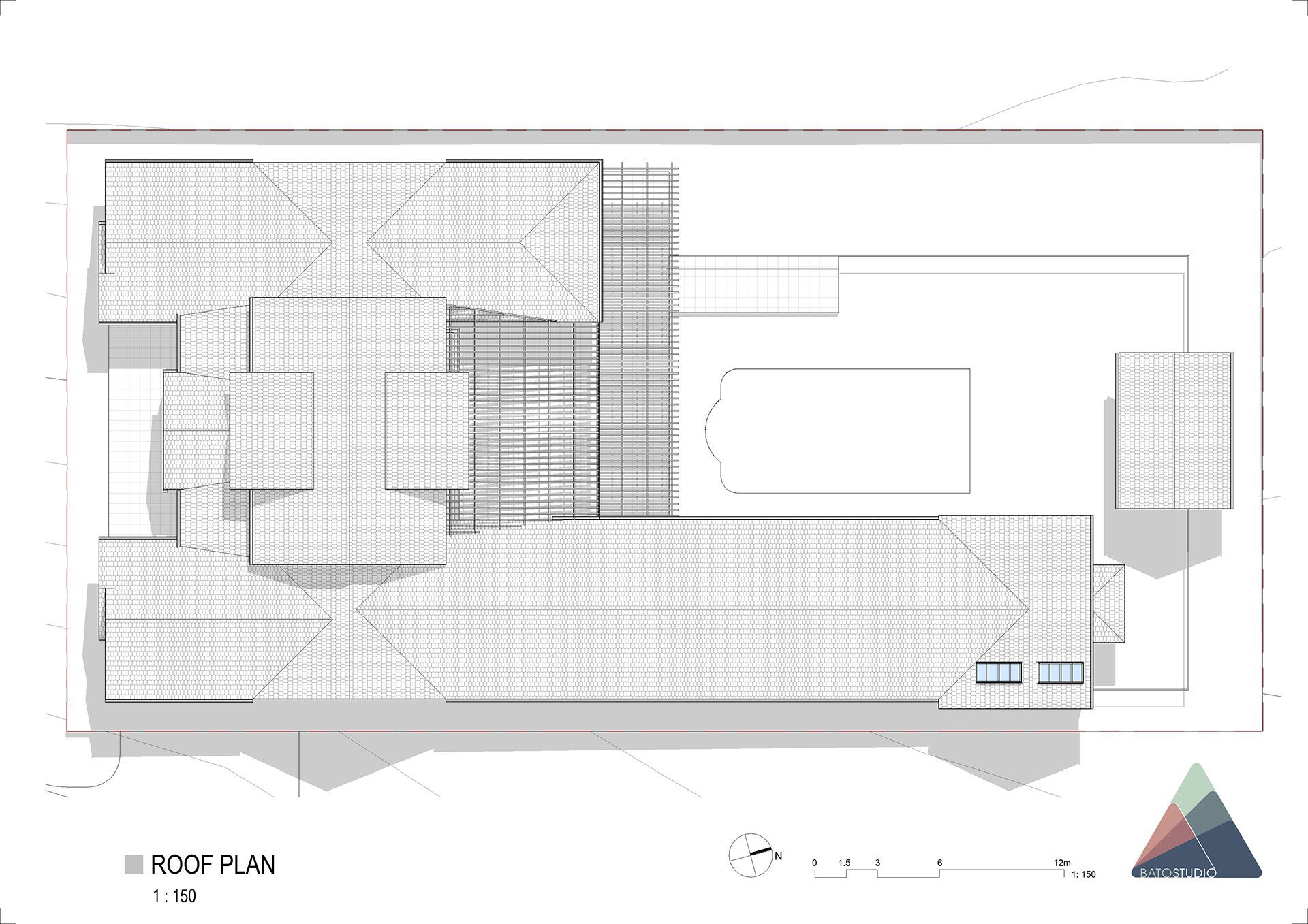
After considering the natural enviroment around the site, we decided to place the elements of the house along the principal axis from the main hall to the outdoor fireplace then the pool and the pool house at the end of the axis. The main hall was the center and most important room in this house. Therefore, it required a special approach to highlight the space. We decided to lift the ceiling with a high-pitch roof and dormers to allow natural lighting into the whole area. From the entrance, the high-pitched ceiling allowed an unobstructed view through the main hall to other areas and also high- light the main axis of the house.
Besides the main hall, other rooms were split into two annexes – living and bedrooms with amenities. The hallway connected the bedrooms with full-height windows to maximize the view of the main pool. We also used the floor-to-ceiling windows in the bedrooms to ensure better ventilation and natural lighting for the interior. The master bedroom had a full-size bathtub in the middle of the room as requested by our client.
This design reflects our fundamental philosophy which is harmony with nature. In our design, we always want to make full use of the natural elements in the site.

















